Mieszkanie na sprzedaż Wrocław, Krzyki, Ołtaszyn, Orawska

68.35 m²
4 pokoje
parter
11 199,59 zł/m2
OTO-MS-31021

765 492 zł

Mieszkanie na sprzedaż
Nowa oferta

Szczegóły oferty

Symbol oferty OTO-MS-31021
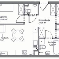
Powierzchnia 68,35 m²
Powierzchnia użytkowa [m2] 68,35 m²
Powierzchnia balkonów/tarasów 6,45 m²
Liczba pokoi 4
Rodzaj budynku nowe budownictwo
Technologia budowlana silikat
Standard
Opłaty w czynszu administracja, CO, Części wspólne, woda/ryczałt na wodę, wywóz nieczystości
Piętro parter
Liczba pięter w budynku 2
Garaż garaż podziemny
Stan lokalu deweloperski
Okna PCV
Instalacje nowe
Balkon jest
Liczba balkonów 1
Rok budowy 2025
Gaz brak
Woda jest
Ogrzewanie C.O. miejskie
Winda tak
Liczba wind 1
Usytuowanie jednostronne
Joanna Witka

Joanna Witka

Specjalista ds.nieruchomości
Nr licencji: 24779

Napisz wiadomość Więcej ofert

Opis nieruchomości

Mieszkanie znajduje się w spokojnej i zielonej okolicy, z dogodnym dostępem do komunikacji miejskiej. W pobliżu znajdują się sklepy, restauracje, szkoły, przedszkola oraz parki, co czyni lokalizację idealną do życia. 

Posiadam w sprzedaży mieszkania na różnych piętrach oraz w różnym metrażu zarówno na tej inwestycji jak i w całym Wrocławiu. 

Mieszkanie (wysokie do 4 metrów, OSTATNIE PIĘTRO) o powierzchni około 68,35 m2 składa się z:

- Pokoju dziennego z aneksem kuchennym 
- Trzech sypialni 
- Łazienki
- WC
- Przedpokoju

Dodatkowo:

- Balkon - 6,45m2

Termin realizacji: I Q 2026

Mieszkanie jest oddawane w stanie deweloperskim, do własnej aranżacji. Zdjęcia przedstawione w ofercie są wizualizacjami. 

✔︎ Zapewniam pomoc w uzyskaniu kredytu oraz wykończeniu mieszkania pod klucz.
✔︎ Kupując z nami nieruchomość zyskujesz 10% rabatu na wykończenie lub remont mieszkania*
✔︎ Możliwość bezpłatnej rezerwacji mieszkania.

Zapraszam do kontaktu: 

JOANNA WITKA: tel. 881 474 269

email: joanna@oto-oto.pl

Pośrednik odpowiedzialny zawodowo za wykonanie umowy pośrednictwa: Grzegorz Niewczas (licencja nr: 24779)
oto-C1D06

Oferta została przygotowana na podstawie informacji uzyskanych od dewelopera. Informacje te są przez nas weryfikowane i sprawdzane, mogą jednak ulegać aktualizacji, w związku z czym powyższa oferta nie stanowi oferty handlowej w rozumieniu Kodeksu Cywilnego, a dane w niej zawarte mają jedynie charakter informacyjny.

Lokalizacja nieruchomości

Kalkulatory

Kalkulator kredytowy

Wysokość raty

PLN
%

Podobne oferty

Mieszkanie na sprzedaż

Wrocław, Krzyki

57 m2 3 Pokoje 1 piętro 12 852,11 zł/m2

Mieszkanie na sprzedaż

Wrocław, Krzyki

74 m2 3 Pokoje 3 piętro 11 486,47 zł/m2

Mieszkanie na sprzedaż

Wrocław, Krzyki

63 m2 3 Pokoje 10 piętro 12 047,62 zł/m2

Mieszkanie na sprzedaż

Wrocław, Krzyki

92 m2 4 Pokoje parter 10 491,80 zł/m2

Dzielnice i osiedla we Wrocławiu

Specjalista ds.nieruchomości

Proszę wprowadzić poprawne imię i nazwisko
Proszę wprowadzić poprawny numer telefonu
Proszę wprowadzić poprawny adres e-mail

Mając na względzie ochronę Państwa danych osobowych i wypełniając obowiązki nałożone na nas przepisami prawa informujemy, że wskazane w formularzu przez Państwa dane osobowe przetwarzane będą na podstawie wyrażonej zgody. Mają Państwa prawo dostępu do swoich danych osobowych i ich poprawiania. Podanie danych osobowych jest dobrowolne.

Proszę zaznaczyć wymagane zgody
Proszę zaznaczyć wymagane zgody
Proszę zaznaczyć wymagane zgody

Informujemy, że Państwa zgoda może zostać cofnięta w dowolnym momencie przez wysłanie wiadomości e-mail na nasz adres biuro@oto-oto.pl spod adresu, którego zgoda dotyczy. Informujemy, że nie jesteście Państwo profilowani. Państwa dane nie będą przekazywane poza EOG ani udostępniane organizacjom międzynarodowym.

Zawiadamiamy, że administratorem Państwa danych osobowych wskazanych w powyższym formularzu jest OTO NIERUCHOMOŚCI Grzegorz Niewczas.

Klauzula informacyjna RODO

Rozwiąż równanie:
19 6
Niepoprawny wynik