Mieszkanie na sprzedaż Wrocław, Stare Miasto, Szczepin

44.00 m²
2 pokoje
7 piętro
16 931,82 zł/m2
OTO-MS-31291

745 000 zł

Mieszkanie na sprzedaż
Nowa oferta

Szczegóły oferty

Symbol oferty OTO-MS-31291
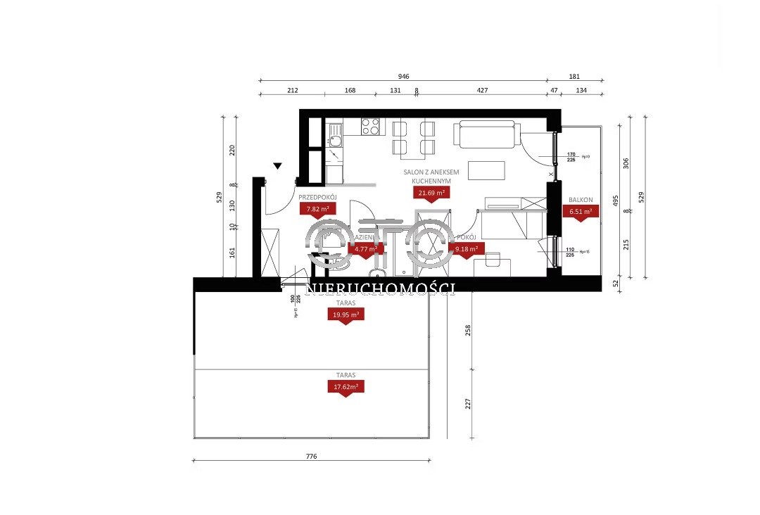
Powierzchnia 44,00 m²
Powierzchnia balkonów/tarasów 40,00 m²
Liczba pokoi 2
Liczba sypialni 1
Rodzaj budynku nowe budownictwo
Technologia budowlana silikat
Standard
Opłaty w czynszu zaliczka na fundusz remontowy, wywóz śmieci, wywóz nieczystości, woda/ryczałt na wodę, woda, Winda, monitoring, fundusz remontowy, Części wspólne, CO, administracja
Opłaty wg liczników Woda ciepła, woda, prąd, CO, Woda zimna
Piętro 7
Liczba pięter w budynku 8
Garaż garaż podziemny
Stan lokalu deweloperski
Okna PCV 3 szyby, ciepły montaż
Instalacje nowe
Balkon jest
Liczba balkonów 1
Liczba tarasów 1
Rok budowy 2028
Plac zabaw tak
Dojazd ASFALTOWA
Otoczenie centrum miasta
Ogrzewanie miejskie
Alarm tak
Winda tak
Liczba wind 1
Tarasy taras duży
Usytuowanie narożne
Drzwi antywłamaniowe tak
Przystosowania dla niepełnosprawnych tak
Rolety antywłamaniowe tak
Grzegorz Niewczas

Grzegorz Niewczas

Specjalista ds.nieruchomości
Nr licencji: 21838

Napisz wiadomość Więcej ofert

Opis nieruchomości

Gotowe w 2028!/ 2 pokoje z tarasem 30 m2/ Zielone osiedle/ Ogrzewanie miejskie/ Winda /Dobrze Skomunikowane/ Tramwaj/ Balkon/ Garaż

Posiadam w sprzedaży mieszkania na różnych piętrach oraz w różnym metrażu zarówno na tej inwestycji jak i w całym Wrocławiu. Zadzwoń i umów się na spotkanie!

Kupujący nie płaci prowizji oraz podatku PCC.


Największe atuty inwestycji:
- centrum sportowe w bliskiej odległości
- pełna infrastruktura
- osiedle pełne zieleni - wewnętrzne dziedzińce pełne drzew, krzewów, kwiatów i ozdobnych gatunków traw
- linie tramwajowe i autobusowe
- C.H. Magnolia w bliskiej odległości

Mieszkanie o powierzchni około 44m2 składa się z:

- pokoju dziennego z aneksem kuchennym
- sypialni
- łazienki z wc
- przedpokoju

Dodatkowo: 
- taras na dachu
- miejsce postojowe (dodatkowo płatne)

Gotowe do końca 2028!

Mieszkanie jest oddawane w stanie deweloperskim, do własnej aranżacji. Zdjęcia przedstawione w ofercie są wizualizacjami. 

✔︎ Zapewniam pomoc w uzyskaniu kredytu oraz wykończeniu mieszkania pod klucz.
✔︎ Kupując z nami nieruchomość zyskujesz 10% rabatu na wykończenie lub remont mieszkania*
✔︎ Możliwość bezpłatnej rezerwacji mieszkania.

Zapraszam do kontaktu: 
Grzegorz Niewczas: tel. 881 474 130

@-mail: grzegorz@oto-oto.pl

Pośrednik odpowiedzialny zawodowo za wykonanie umowy pośrednictwa: Grzegorz Niewczas (licencja nr: 21838)
oto-07312
Oferta została przygotowana na podstawie informacji uzyskanych od dewelopera. Informacje te są przez nas weryfikowane i sprawdzane, mogą jednak ulegać aktualizacji, w związku z czym powyższa oferta nie stanowi oferty handlowej w rozumieniu Kodeksu Cywilnego, a dane w niej zawarte mają jedynie charakter informacyjny.

Lokalizacja nieruchomości

Kalkulatory

Kalkulator kredytowy

Wysokość raty

PLN
%

Podobne oferty

Mieszkanie na sprzedaż

Wrocław, Stare Miasto

50 m2 2 Pokoje 4 piętro 14 580,00 zł/m2

Mieszkanie na sprzedaż

Wrocław, Stare Miasto

70 m2 3 Pokoje 1 piętro 12 230,22 zł/m2

Mieszkanie na sprzedaż

Wrocław, Stare Miasto

49 m2 3 Pokoje parter 15 345,73 zł/m2

Mieszkanie na sprzedaż

Wrocław, Stare Miasto

55 m2 3 Pokoje 3 piętro 13 254,55 zł/m2

Dzielnice i osiedla we Wrocławiu

Specjalista ds.nieruchomości

Proszę wprowadzić poprawne imię i nazwisko
Proszę wprowadzić poprawny numer telefonu
Proszę wprowadzić poprawny adres e-mail

Mając na względzie ochronę Państwa danych osobowych i wypełniając obowiązki nałożone na nas przepisami prawa informujemy, że wskazane w formularzu przez Państwa dane osobowe przetwarzane będą na podstawie wyrażonej zgody. Mają Państwa prawo dostępu do swoich danych osobowych i ich poprawiania. Podanie danych osobowych jest dobrowolne.

Proszę zaznaczyć wymagane zgody
Proszę zaznaczyć wymagane zgody
Proszę zaznaczyć wymagane zgody

Informujemy, że Państwa zgoda może zostać cofnięta w dowolnym momencie przez wysłanie wiadomości e-mail na nasz adres biuro@oto-oto.pl spod adresu, którego zgoda dotyczy. Informujemy, że nie jesteście Państwo profilowani. Państwa dane nie będą przekazywane poza EOG ani udostępniane organizacjom międzynarodowym.

Zawiadamiamy, że administratorem Państwa danych osobowych wskazanych w powyższym formularzu jest OTO NIERUCHOMOŚCI Grzegorz Niewczas.

Klauzula informacyjna RODO

Rozwiąż równanie:
13 3
Niepoprawny wynik