Mieszkanie na sprzedaż Wrocław, Fabryczna, Żerniki, Brzozy

35.68 m²
2 pokoje
7 piętro
13 199,16 zł/m2
OTO-MS-30982

470 946 zł

Mieszkanie na sprzedaż
Nowa oferta

Szczegóły oferty

Symbol oferty OTO-MS-30982
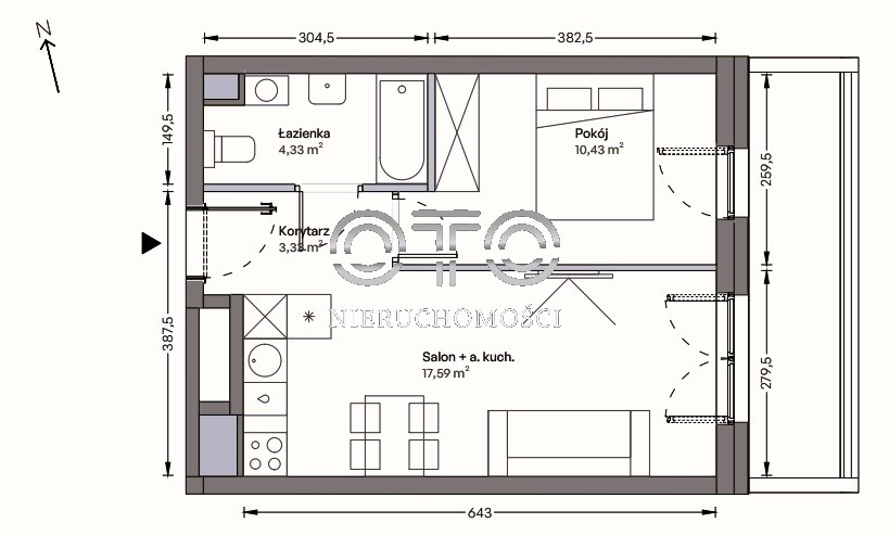
Powierzchnia 35,68 m²
Powierzchnia użytkowa [m2] 35,68 m²
Powierzchnia balkonów/tarasów 6,92 m²
Liczba pokoi 2
Liczba sypialni 1
Rodzaj budynku nowe budownictwo
Technologia budowlana silikat
Standard
Opłaty w czynszu administracja, CO, Części wspólne, fundusz remontowy, monitoring, Winda, woda, woda/ryczałt na wodę, wywóz nieczystości, wywóz śmieci, zaliczka na fundusz remontowy
Opłaty wg liczników CO, prąd, woda, Woda ciepła, Woda zimna
Piętro 7
Liczba pięter w budynku 7
Garaż w budynku
Stan lokalu deweloperski
Mies. czynsz admin. 400 PLN
Okna PCV 3 szyby, ciepły montaż
Instalacje nowe
Balkon jest
Liczba balkonów 1
Rok budowy 2026
Plac zabaw tak
Gaz tak - miejski
Woda ciepła - miejska
Dojazd ASFALTOWA
Otoczenie centrum miasta
Ogrzewanie C.O. miejskie
Alarm tak
Winda tak
Liczba wind 1
Usytuowanie jednostronne
Drzwi antywłamaniowe tak
Rolety antywłamaniowe tak
Joanna Witka

Joanna Witka

Specjalista ds.nieruchomości
Nr licencji: 24779

Napisz wiadomość Więcej ofert

Opis nieruchomości

Gotowe w drugim kwartale 2026r./Świetnie skomunikowane z centrum/ Ogrzewanie miejskie / Winda/2 pokoje/ Balkon - prawie 7mkw

Dostępne w sprzedaży mieszkania na różnych piętrach oraz w różnym metrażu.
Także w innych inwestycjach.
Zadzwoń i umów się na spotkanie!

Kupujący nie płaci prowizji oraz podatku PCC.


Największe atuty inwestycji:

-Otoczenie zieleni i terenów rekreacyjnych – Glinianki z plażą miejską, Park Pilczycki, Las Kuźnicki, Skwer Scharouna.
-Kameralne, nowoczesne budynki w niskiej zabudowie.
-Zielone części wspólne z placem zabaw i strefami relaksu.
-Doskonała komunikacja – blisko Tarczyński Arena, obwodnica, tramwaje, autobusy, stacja Wrocław Żerniki.
-Pełna infrastruktura w zasięgu kilku minut – sklepy, usługi, szkoły, przedszkola, przychodnie.

Mieszkanie o powierzchni około 35,68m2 składa się z:


- pokoju dziennego z aneksem kuchennym
- sypialni
- łazienki z WC
- przedpokoju

Dodatkowo:

- balkon 6,92mkw

Gotowe  - II kw 2026 r.

Mieszkanie jest oddawane w stanie deweloperskim, do własnej aranżacji. Zdjęcia przedstawione w ofercie są wizualizacjami. 

✔︎ Zapewniam pomoc w uzyskaniu kredytu oraz wykończeniu mieszkania pod klucz.
✔︎ Kupując z nami nieruchomość zyskujesz 10% rabatu na wykończenie lub remont mieszkania*
✔︎ Możliwość bezpłatnej rezerwacji mieszkania.

Zapraszam do kontaktu: 

JOANNA WITKA: tel. 881 474 269

email: joanna@oto-oto.pl

Pośrednik odpowiedzialny zawodowo za wykonanie umowy pośrednictwa: Grzegorz Niewczas (licencja nr: 24779)
oto-B30107
Oferta została przygotowana na podstawie informacji uzyskanych od dewelopera. Informacje te są przez nas weryfikowane i sprawdzane, mogą jednak ulegać aktualizacji, w związku z czym powyższa oferta nie stanowi oferty handlowej w rozumieniu Kodeksu Cywilnego, a dane w niej zawarte mają jedynie charakter informacyjny.

Lokalizacja nieruchomości

Kalkulatory

Kalkulator kredytowy

Wysokość raty

PLN
%

Podobne oferty

Mieszkanie na sprzedaż

Wrocław, Fabryczna

46 m2 2 Pokoje 3 piętro 10 824,30 zł/m2

Mieszkanie na sprzedaż

Wrocław, Fabryczna

26 m2 1 Pokoje 1 piętro 15 384,58 zł/m2

Mieszkanie na sprzedaż

Wrocław, Fabryczna

38 m2 2 Pokoje 1 piętro 13 131,58 zł/m2

Mieszkanie na sprzedaż

Wrocław, Fabryczna

39 m2 2 Pokoje 2 piętro 12 820,49 zł/m2

Dzielnice i osiedla we Wrocławiu

Specjalista ds.nieruchomości

Proszę wprowadzić poprawne imię i nazwisko
Proszę wprowadzić poprawny numer telefonu
Proszę wprowadzić poprawny adres e-mail

Mając na względzie ochronę Państwa danych osobowych i wypełniając obowiązki nałożone na nas przepisami prawa informujemy, że wskazane w formularzu przez Państwa dane osobowe przetwarzane będą na podstawie wyrażonej zgody. Mają Państwa prawo dostępu do swoich danych osobowych i ich poprawiania. Podanie danych osobowych jest dobrowolne.

Proszę zaznaczyć wymagane zgody
Proszę zaznaczyć wymagane zgody
Proszę zaznaczyć wymagane zgody

Informujemy, że Państwa zgoda może zostać cofnięta w dowolnym momencie przez wysłanie wiadomości e-mail na nasz adres biuro@oto-oto.pl spod adresu, którego zgoda dotyczy. Informujemy, że nie jesteście Państwo profilowani. Państwa dane nie będą przekazywane poza EOG ani udostępniane organizacjom międzynarodowym.

Zawiadamiamy, że administratorem Państwa danych osobowych wskazanych w powyższym formularzu jest OTO NIERUCHOMOŚCI Grzegorz Niewczas.

Klauzula informacyjna RODO

Rozwiąż równanie:
23 9
Niepoprawny wynik