Mieszkanie na sprzedaż Wrocław, Krzyki, Ołtaszyn

28.27 m²
2 pokoje
1 piętro
13 899,58 zł/m2
OTO-MS-30896

392 941 zł

Mieszkanie na sprzedaż
Nowa oferta

Szczegóły oferty

Symbol oferty OTO-MS-30896
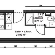
Powierzchnia 28,27 m²
Liczba pokoi 2
Rodzaj budynku nowe budownictwo
Technologia budowlana silikat
Standard
Opłaty w czynszu administracja, CO, Części wspólne, woda/ryczałt na wodę, wywóz nieczystości
Piętro 1
Liczba pięter w budynku 2
Garaż garaż podziemny
Stan lokalu deweloperski
Mies. czynsz admin. 350 PLN
Okna PCV
Instalacje nowe
Balkon jest
Liczba balkonów 1
Rok budowy 2026
Gaz brak
Woda jest
Ogrzewanie C.O. miejskie
Winda tak
Liczba wind 1
Usytuowanie jednostronne
Joanna Witka

Joanna Witka

Specjalista ds.nieruchomości
Nr licencji: 24779

Napisz wiadomość Więcej ofert

Opis nieruchomości

Mieszkanie znajduje się w spokojnej i zielonej okolicy, z dogodnym dostępem do komunikacji miejskiej. W pobliżu znajdują się sklepy, restauracje, szkoły, przedszkola oraz parki, co czyni lokalizację idealną do życia. 

Posiadam w sprzedaży mieszkania na różnych piętrach oraz w różnym metrażu zarówno na tej inwestycji jak i w całym Wrocławiu. 

Mieszkanie o powierzchni około 28,27m2

- Pokoju dziennego z aneksem kuchennym
- wydzielonej sypialni
- Łazienki


Termin realizacji: I kwartał 2026 (gotowe na koniec 2025 r.)

Mieszkanie jest oddawane w stanie deweloperskim, do własnej aranżacji. Zdjęcia przedstawione w ofercie są wizualizacjami. 

✔︎ Zapewniam pomoc w uzyskaniu kredytu oraz wykończeniu mieszkania pod klucz.
✔︎ Kupując z nami nieruchomość zyskujesz 10% rabatu na wykończenie lub remont mieszkania*
✔︎ Możliwość bezpłatnej rezerwacji mieszkania.

Zapraszam do kontaktu: 

JOANNA WITKA: tel. 881 474 269

email: joanna@oto-oto.pl

Pośrednik odpowiedzialny zawodowo za wykonanie umowy pośrednictwa: Grzegorz Niewczas (licencja nr: 24779)
oto-D1.C.12


Oferta została przygotowana na podstawie informacji uzyskanych od dewelopera. Informacje te są przez nas weryfikowane i sprawdzane, mogą jednak ulegać aktualizacji, w związku z czym powyższa oferta nie stanowi oferty handlowej w rozumieniu Kodeksu Cywilnego, a dane w niej zawarte mają jedynie charakter informacyjny.

Lokalizacja nieruchomości

Kalkulatory

Kalkulator kredytowy

Wysokość raty

PLN
%

Podobne oferty

Mieszkanie na sprzedaż

Wrocław, Krzyki

41 m2 2 Pokoje parter 12 073,17 zł/m2

Mieszkanie na sprzedaż

Wrocław, Krzyki

34 m2 2 Pokoje 4 piętro 14 647,06 zł/m2

Mieszkanie na sprzedaż

Wrocław, Krzyki

34 m2 2 Pokoje 2 piętro 14 411,76 zł/m2

Mieszkanie na sprzedaż

Wrocław, Krzyki

29 m2 1 Pokoje 2 piętro 13 367,70 zł/m2

Dzielnice i osiedla we Wrocławiu

Specjalista ds.nieruchomości

Proszę wprowadzić poprawne imię i nazwisko
Proszę wprowadzić poprawny numer telefonu
Proszę wprowadzić poprawny adres e-mail

Mając na względzie ochronę Państwa danych osobowych i wypełniając obowiązki nałożone na nas przepisami prawa informujemy, że wskazane w formularzu przez Państwa dane osobowe przetwarzane będą na podstawie wyrażonej zgody. Mają Państwa prawo dostępu do swoich danych osobowych i ich poprawiania. Podanie danych osobowych jest dobrowolne.

Proszę zaznaczyć wymagane zgody
Proszę zaznaczyć wymagane zgody
Proszę zaznaczyć wymagane zgody

Informujemy, że Państwa zgoda może zostać cofnięta w dowolnym momencie przez wysłanie wiadomości e-mail na nasz adres biuro@oto-oto.pl spod adresu, którego zgoda dotyczy. Informujemy, że nie jesteście Państwo profilowani. Państwa dane nie będą przekazywane poza EOG ani udostępniane organizacjom międzynarodowym.

Zawiadamiamy, że administratorem Państwa danych osobowych wskazanych w powyższym formularzu jest OTO NIERUCHOMOŚCI Grzegorz Niewczas.

Klauzula informacyjna RODO

Rozwiąż równanie:
14 4
Niepoprawny wynik