Mieszkanie na sprzedaż Wrocław, Śródmieście, Kleczków

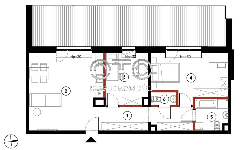
76.95 m²
3 pokoje
1 piętro
15 581,55 zł/m2
OTO-MS-31350

1 199 000 zł

Mieszkanie na sprzedaż
Nowa oferta

Szczegóły oferty

Symbol oferty OTO-MS-31350
Powierzchnia 76,95 m²
Powierzchnia użytkowa [m2] 76,95 m²
Powierzchnia balkonów/tarasów 40,00 m²
Liczba pokoi 3
Liczba sypialni 2
Rodzaj budynku nowe budownictwo
Technologia budowlana silikat
Standard
Opłaty w czynszu administracja, CO, Części wspólne, fundusz remontowy, gaz, ogrzewanie, sprzątanie, telewizja kablowa, Winda, woda, woda ciepła, woda/ryczałt na wodę, wywóz nieczystości, wywóz śmieci, zaliczka na fundusz remontowy
Opłaty wg liczników CO, gaz, prąd, woda, Woda ciepła, Woda zimna
Piętro 1
Liczba pięter w budynku 3
Garaż garaż pod budynkiem
Stan lokalu do wykończenia
Okna PCV 3 szyby, ciepły montaż
Instalacje nowe
Balkon jest
Liczba balkonów 1
Liczba tarasów 1
Rok budowy 2028
Ogrzewanie miejskie
Winda tak
Tarasy taras duży
Usytuowanie narożne
Drzwi antywłamaniowe tak
Przystosowania dla niepełnosprawnych tak
Grzegorz Niewczas

Grzegorz Niewczas

Specjalista ds.nieruchomości
Nr licencji: 21838

Napisz wiadomość Więcej ofert

Opis nieruchomości

Wyjątkowa inwestycja nad rzeką/Co wybierasz? Nowoczesna zabudowa, czy odrestaurowana kamienica?/Gotowe w 2028/Harmonogram 10-90/Ogrzewanie miejskie/Winda/Świetnie skomunikowane/Ścieżki spacerowe nad Odrą/Pełna infrastruktura

Posiadam w sprzedaży mieszkania na różnych piętrach oraz w różnym metrażu zarówno na tej inwestycji jak i w całym Wrocławiu. Zadzwoń i umów się na spotkanie!

Kupujący nie płaci prowizji oraz podatku PCC.


Największe atuty inwestycji:
- tereny rekreacyjne: Ścieżki spacerowe nad Odrą
- pełna infrastruktura
- balkon lub taras do każdego z mieszkań 
- dobrze skomunikowana okolica
Mieszkanie o powierzchni około 77m2 składa się z:
- pokoju dziennego  
- dwóch sypialni
- łazienki z osobnym wc
- przedpokoju

Dodatkowo:
- taras 40 m2

Zakończenie budowy: 2028 r.

Mieszkanie jest oddawane w stanie deweloperskim, do własnej aranżacji. 
Zdjęcia przedstawione w ofercie są wizualizacjami. 

✔︎ Zapewniam pomoc w uzyskaniu kredytu oraz wykończeniu mieszkania pod klucz.
✔︎ Kupując z nami nieruchomość zyskujesz 10% rabatu na wykończenie lub remont mieszkania*
✔︎ Możliwość bezpłatnej rezerwacji mieszkania.


Zapraszam do kontaktu: 
Grzegorz Niewczas: tel. 881 474 130

@-mail: grzegorz@oto-oto.pl
Pośrednik odpowiedzialny zawodowo za wykonanie umowy pośrednictwa: Grzegorz Niewczas (licencja nr: 21838)
oto- 1199
Oferta została przygotowana na podstawie informacji uzyskanych od dewelopera. Informacje te są przez nas weryfikowane i sprawdzane, mogą jednak ulegać aktualizacji, w związku z czym powyższa oferta nie stanowi oferty handlowej w rozumieniu Kodeksu Cywilnego, a dane w niej zawarte mają jedynie charakter informacyjny.

Lokalizacja nieruchomości

Kalkulatory

Kalkulator kredytowy

Wysokość raty

PLN
%

Podobne oferty

Mieszkanie na sprzedaż

Wrocław, Śródmieście

58 m2 3 Pokoje 3 piętro 16 112,24 zł/m2

Mieszkanie na sprzedaż

Wrocław, Śródmieście

71 m2 4 Pokoje 2 piętro 14 718,31 zł/m2

Mieszkanie na sprzedaż

Wrocław, Śródmieście

72 m2 4 Pokoje 4 piętro 12 847,22 zł/m2

Mieszkanie na sprzedaż

Wrocław, Śródmieście

83 m2 4 Pokoje 5 piętro 15 662,65 zł/m2

Dzielnice i osiedla we Wrocławiu

Specjalista ds.nieruchomości

Proszę wprowadzić poprawne imię i nazwisko
Proszę wprowadzić poprawny numer telefonu
Proszę wprowadzić poprawny adres e-mail

Mając na względzie ochronę Państwa danych osobowych i wypełniając obowiązki nałożone na nas przepisami prawa informujemy, że wskazane w formularzu przez Państwa dane osobowe przetwarzane będą na podstawie wyrażonej zgody. Mają Państwa prawo dostępu do swoich danych osobowych i ich poprawiania. Podanie danych osobowych jest dobrowolne.

Proszę zaznaczyć wymagane zgody
Proszę zaznaczyć wymagane zgody
Proszę zaznaczyć wymagane zgody

Informujemy, że Państwa zgoda może zostać cofnięta w dowolnym momencie przez wysłanie wiadomości e-mail na nasz adres biuro@oto-oto.pl spod adresu, którego zgoda dotyczy. Informujemy, że nie jesteście Państwo profilowani. Państwa dane nie będą przekazywane poza EOG ani udostępniane organizacjom międzynarodowym.

Zawiadamiamy, że administratorem Państwa danych osobowych wskazanych w powyższym formularzu jest OTO NIERUCHOMOŚCI Grzegorz Niewczas.

Klauzula informacyjna RODO

Rozwiąż równanie:
27 3
Niepoprawny wynik